Save
Ask
Tour
Hide
$440,000
41 Days On Site
1802 Jett RdMaryville, TN 37804
For Sale|Land|Active
Subdivision:
Manning Lane Property
County:
Blount County - 28
Call Now: 865-850-2117
Is this the listing for you? We can help make it yours.
865-850-2117


Save
Ask
Tour
Hide
Mortgage Calculator
Monthly Payment (Est.)
$2,007Calculator powered by Showcase IDX, a Constellation1 Company. Copyright ©2025 Information is deemed reliable but not guaranteed.
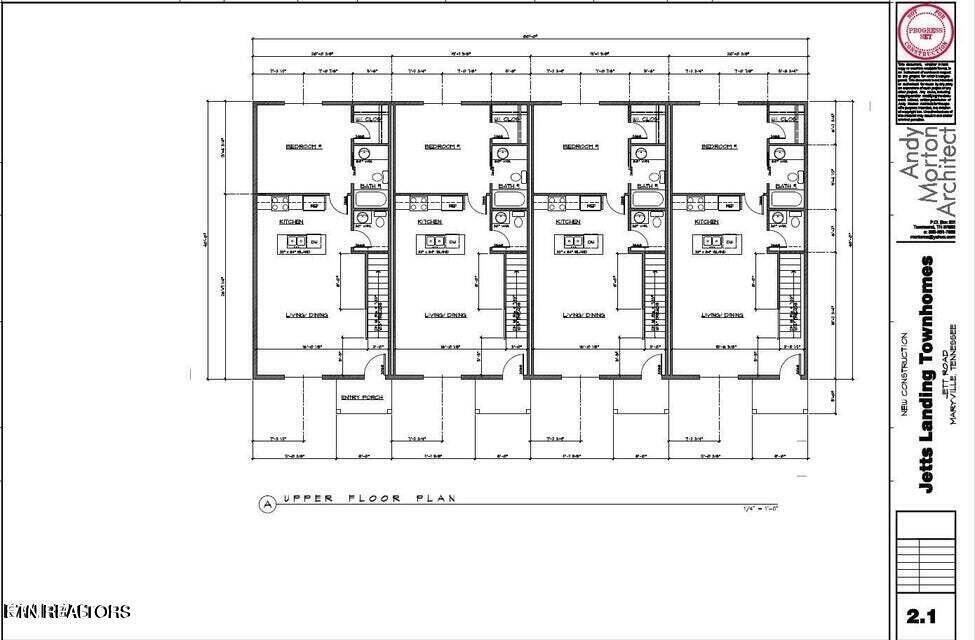
Proposed Development now approved for 16 condos! Update, Some clearing and silt fence now installed to facilitate survey and field staking, Architectural plans are complete, and an city and state approved site plan as well. Great location, convenient to Knoxville,, Amazon and Old Knoxville Pike, Pellissippi and Alcoa Highways Ideal for a luxury workforce housing development, with 2 master Bedrooms 2 and1/2 baths, proposed in 4- 4plexes. Water Line down West side of property, sewer at Manning Lane. This is a development our community will have great demand for!
Save
Ask
Tour
Hide
Listing Snapshot
Price
$440,000
Days On Site
41 Days
Bedrooms
N/A
Inside Area (SqFt)
N/A
Total Baths
N/A
Full Baths
N/A
Partial Baths
N/A
Lot Size
2.67 Acres
Year Built
N/A
MLS® Number
1315985
Status
Active
Property Tax
N/A
HOA/Condo/Coop Fees
N/A
Sq Ft Source
N/A
Friends & Family
Recent Activity
| a month ago | Listing first seen on site | |
| a month ago | Listing updated with changes from the MLS® |
General Features
Acres
2.67
Utilities
Cable Available
Zoning
Zoned Residential, Zoned Multi-Family
Save
Ask
Tour
Hide
Exterior Features
Lot Features
Rolling Slope
Road Frontage
City Street
Community Features
Association Amenities
Other
Financing Terms Available
CashConventional
MLS Area
Blount County - 28
Roads
Paved
Listing courtesy of John Weston of Realty Executives Associates
Copyright © 2025 Knoxville Area Association of Realtors. IDX information is provided exclusively for consumers' personal, non-commercial use and may not be used for any purpose other than to identify prospective properties consumers may be interested in purchasing. Information is deemed reliable but is not guaranteed accurate by the MLS.
Copyright © 2025 Knoxville Area Association of Realtors. IDX information is provided exclusively for consumers' personal, non-commercial use and may not be used for any purpose other than to identify prospective properties consumers may be interested in purchasing. Information is deemed reliable but is not guaranteed accurate by the MLS.
Neighborhood & Commute
Source: Walkscore
Disclosure: Community information and market data powered by Constellation Data Labs. Information is deemed reliable but not guaranteed.
Save
Ask
Tour
Hide

Did you know? You can invite friends and family to your search. They can join your search, rate and discuss listings with you.